Nestled in the heart of a breathtaking, natural setting, Bingara Gorge invites you to enjoy a contemporary lifestyle complete with vibrant eateries and retail, a modern gym, education and a world-class 18-hole golf course – all on your doorstep.
Currently available:
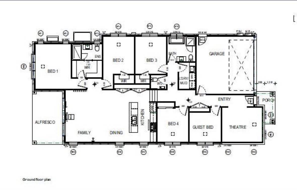
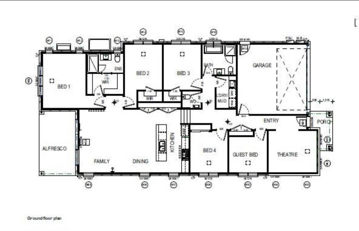
* Lot 158/13 Gibney St - land 375sqm | house 230.1sqm | bed 5, bath 2.5, car 2 - $1,350,000
* Lot 183/6 McLellan St - land 480sqm | house 231.9sqm | bed 5, bath 2.5, car 2 - $1,450,000
* Lot 184/4 McLellan St - land 480sqm | house 232.7sqm | bed 5, bath 2.5, car 2 - $1,450,000
* Lot 200/14 Frew Street - land 450sqm | house 226sqm | bed 4, bath 2.5, car 2 - $1,450,000
DISCLAIMER: Whilst every effort has been made to ensure the accuracy and thoroughness of the information provided to you in our marketing material, we cannot guarantee the accuracy of the information provided by our Vendors, and as such, Starr Partners Narellan makes no statement, representation or warranty, and assumes no legal liability in relation to the accuracy of the information provided. Interested parties should conduct their own due diligence in relation to each property they are considering purchasing. All photographs, maps and images are representative only, for marketing purposes.
