Set on a generous parcel of land, this well-cared-for home offers comfort, space and a welcoming atmosphere perfect for growing families. Offering three spacious bedrooms and a thoughtfully updated family bathroom, the residence presents a move-in ready foundation with room to further personalise over time. Warm, welcoming and full of potential, this is a home ready for its next chapter.
Key features:
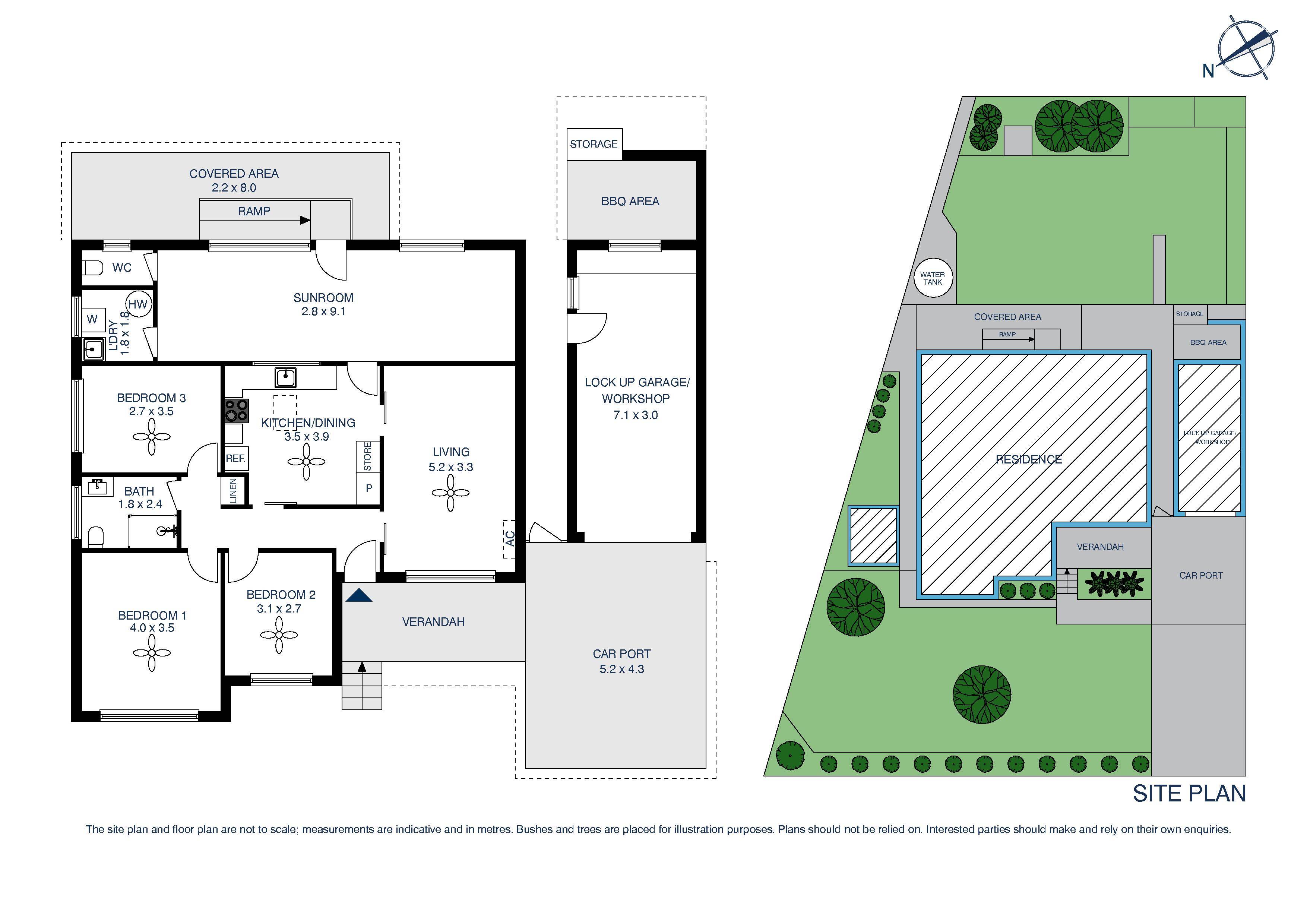
- Three spacious bedrooms
- Spacious lounge room, separate dining
- Neat kitchen with electric cooking, ample storage
- Light-filled sunroom offering a versatile additional living space
- Stylish modern bathroom, two toilets
- Secure lock-up garage with adjoining workshop, plus additional carport parking
- Alfresco entertaining areas perfect for year-round gatherings
- 569.1m2 block with manicured gardens
