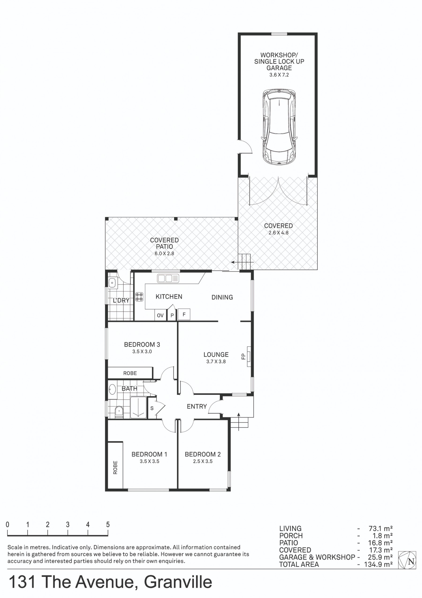
This three bedroom family home is located within a fantastic street in close proximity to shops and schools.
Featuring;
+ Freshly painted
+ Floating flooring throughout
+ Built in wardrobes to two bedrooms
+ Master bedroom with air conditioning and ceiling fan
+ Spacious lounge room with air conditioning and ceiling fan
+ Renovated bathroom
+ Eat in kitchen with dishwasher and electric cooking
+ Lock up garage and carport
+ Undercover entertaining area
+ Easy care backyard. Great for the kids!
+ Combustion stove excluded from the lease
Located approximately;
500m to Granville TAFE
600m to Shops
1.4km to Granville Train Station
1.5km to Granville East Public School
RENTING WITH STARR PARTNERS IS EASY!
We have high quality 3D Virtual Tours, photos, and floor plans to enable you to inspect & lease properties online.
Want to lease this property? View the Virtual Tour, photos, and floor plan.
Submit your application.
We will seek pre-approval of your application.
If pre-approved, we can arrange a private inspection of the property for you and arrange for you to DocuSign your lease agreement.
"Advertising disclaimer: The information provided herewith has been furnished to us. We have not verified whether or not that information is accurate and do not have any belief one way or the other in its accuracy. We do not accept any responsibility to any person for its accuracy and do no more than pass it on. All interested parties should make and rely on their own inquiries in order to determine whether or not this information is in fact accurate".
