SOLD BY STARR PARTNERS AUBURN.
A true grand design in the making, this nearly complete home is looking for someone with the vision and knowledge to finish this dream home. Architecturally designed, with amazing warmth and character you don't see any more and with a unique spacious layout over 3 split levels, 5 bedrooms, multiple living areas, and many grand and unique features, this home could be the opportunity for you to finish this landmark property.
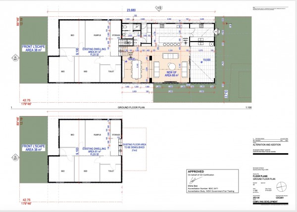
This home is nearly complete, with most materials for completion on site and ready. Approved plans and certificates available.
Huge parents retreat with full bathroom and enormous walk in robe, spacious bedrooms with built ins, high ceilings and approval for a granny flat. In a popular location, with north facing aspect, and close to schools and shops, and only 1.4km to Auburn station, this is a real one of a kind opportunity!
* 518sqm block with 12.19m frontage
* Unique and spacious split-level floorplan
* High ceilings, large bedrooms
* Multiple living areas on all levels
* Architecturally inspired design
* A real one of a kind opportunity
* Rules for inspections for Work Health & Safety reasons: - No children on site - Numbers may be restricted for safety reasons.
DISCLAIMER: Whilst every effort has been made to ensure the accuracy and thoroughness of the information provided to you in our marketing material, we cannot guarantee the accuracy of the information provided by our Vendors, and as such, Starr Partners Auburn makes no statement, representation or warranty, and assumes no legal liability in relation to the accuracy of the information provided. Interested parties should conduct their own due diligence in relation to each property they are considering purchasing. All photographs, maps and images are representative only, for marketing purposes.
