Starr Partners Bella Vista proudly presents a stunning resort-style residence in the highly sought-after Marsden Park community.
Beautifully designed to deliver both luxury and comfort, this impressive home offers the perfect balance of elegant interiors and resort-inspired outdoor living. Showcasing generous proportions and stylish finishes throughout, the home provides an exceptional lifestyle opportunity for families seeking space, privacy, and sophistication.
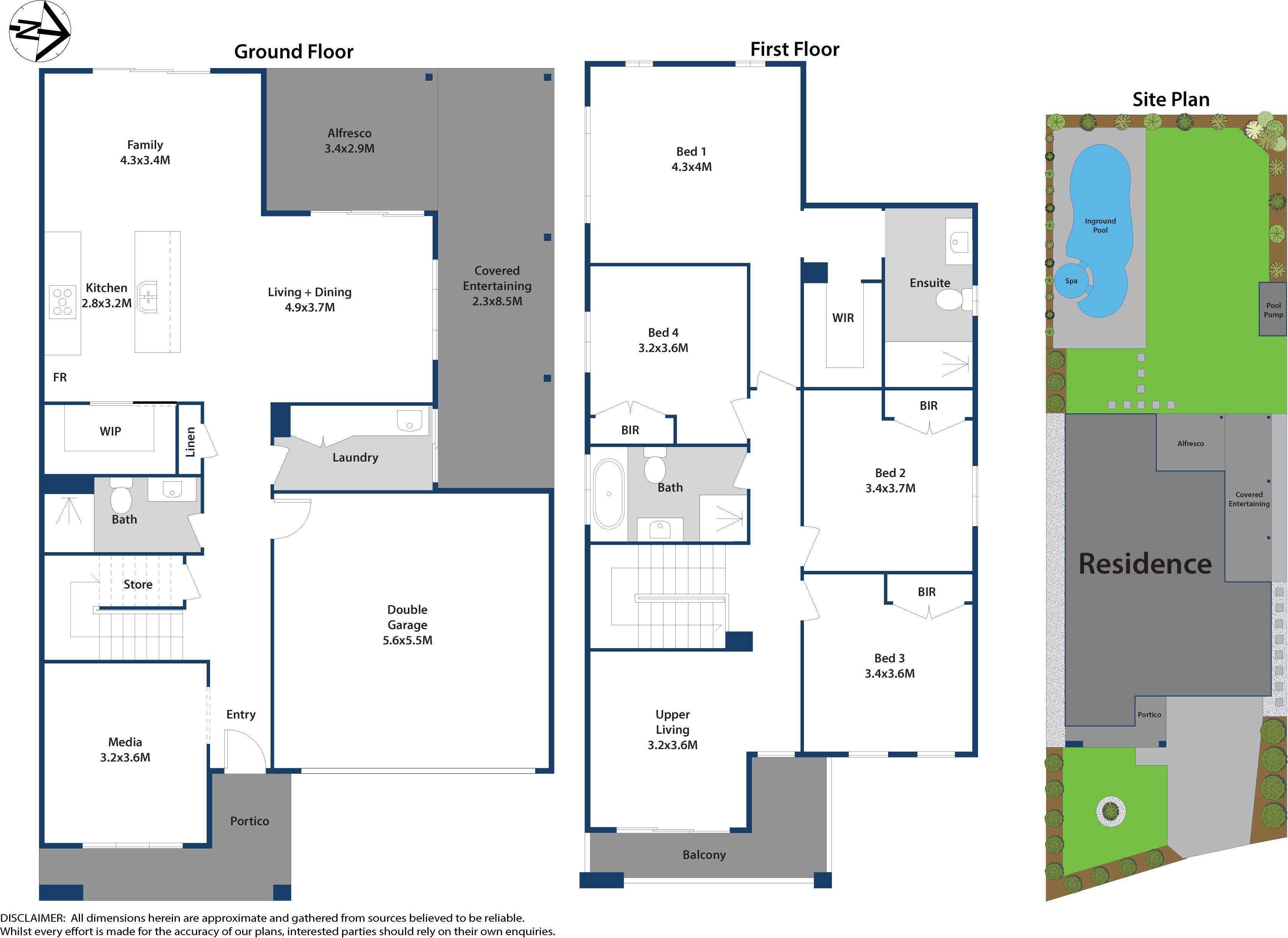
Bathed in natural light, the thoughtfully designed floorplan reveals expansive living and dining zones complemented by a contemporary kitchen, creating a seamless environment for everyday family living and entertaining. Step outside to your own private oasis where a sparkling mineral swimming pool and relaxing spa bath create the ultimate resort-style retreat.
Perfectly positioned close to local parks, schools, shopping centres and major transport links, this exceptional residence delivers modern family living with the added luxury of a private resort-inspired lifestyle.
Property Features
~ Five generous bedrooms with built-in wardrobes
~ Master suite featuring walk-in robe and stylish en-suite
~ Three modern bathrooms with quality fittings
~ Multiple living and dining zones perfect for family living
~ Contemporary kitchen with stone benchtops, quality appliances and ample storage
~ Spectacular resort-style mineral swimming pool with a built-in circular spa, elegantly framed by travertine surrounds and glass fencing, creating a private backyard oasis perfect for relaxation and entertaining year-round
~ Beautiful outdoor entertaining area overlooking the pool
~ Double lock-up garage with internal access
~ Ducted air conditioning throughout
~ Spacious backyard ideal for entertaining and family enjoyment
~ 13 kW solar panel system, keeping electricity bills to a minimum ☀️
~ Land size approx. 491 sqm
Location Highlights
~ Close to local schools and childcare centres
~ Minutes to Marsden Park Shopping Centre and local amenities
~ Easy access to major roads and transport links
~ Surrounded by parks, playgrounds and family-friendly facilities
For more information, please contact Amrit on 04523 316 070
Disclaimer: All information contained herein is gathered from third party sources we deem to be reliable. However, we cannot guarantee its accuracy and interested persons should rely on their own independent enquiries.
