SOLD BY STARR PARTNERS PEMULWUY. CALL 9688 8999 FOR A FREE MARKET UPDATE
Calling all builders, developers or investors!! Amazing opportunity to purchase a vacant 555.2m2 block in the heart of this very sought after suburb.
* Vacant 555.2m2 block
* Wide 20.5m Frontage
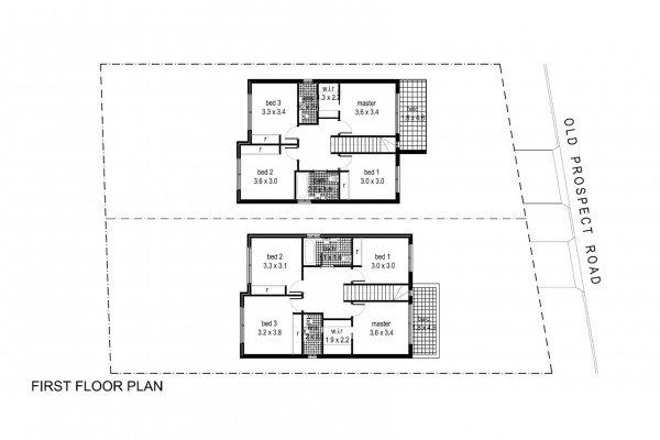
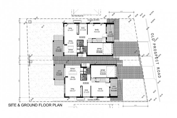
* DA Approved for 2 x 4 bedroom detached homes
* Great position handy to Pemulwuy and the Golf Course
* Surrounded by modern homes enhances the value of the finished product
